Toimitilan Volttikatu 5 tiedot:

Edullista ja siistiä toimistotilaa Savilahdesta Toimistotilat ovat hyvillä perusvarusteilla varustettuja eli toimivia tiloja muuttovalmiina. Toimistotilat ovat valoisat, siistit, terveet ja puitteet ovat keskitasoa. Toimistohuoneissa on valmiina sälekaihtimet koneellinen ilmanvaihto hyvä valaistus kuituyhteys kiinteistölle sisustusvalmiit seinät parkettilattiat iLOQ lukitusjärjestelmä kulunvalvontavalmius käytävillä laattalattia WC tilat N/M parkkipaikat piha-alueella jätehuoltokatos Kiinteistö ja sijainti Savilahdessa Volttikatu 5:ssa kiinteistön toimistotiloissa on aiemmin toiminut mm. asiantuntijaorganisaatioita. Kiinteistöllä on paljon tasokkaita ratkaisuja, jotka tekevät työskentelystä viihtyisää. Piha-alueella on runsaasti parkkipaikkoja ja tolppapaikkoja. Volttikadulle on hyvät julkiset kulkuyhteydet ja bussipysäkki on n. parin kävelyminuutin päässä. Tämä kannatta tsekata ensiksi!

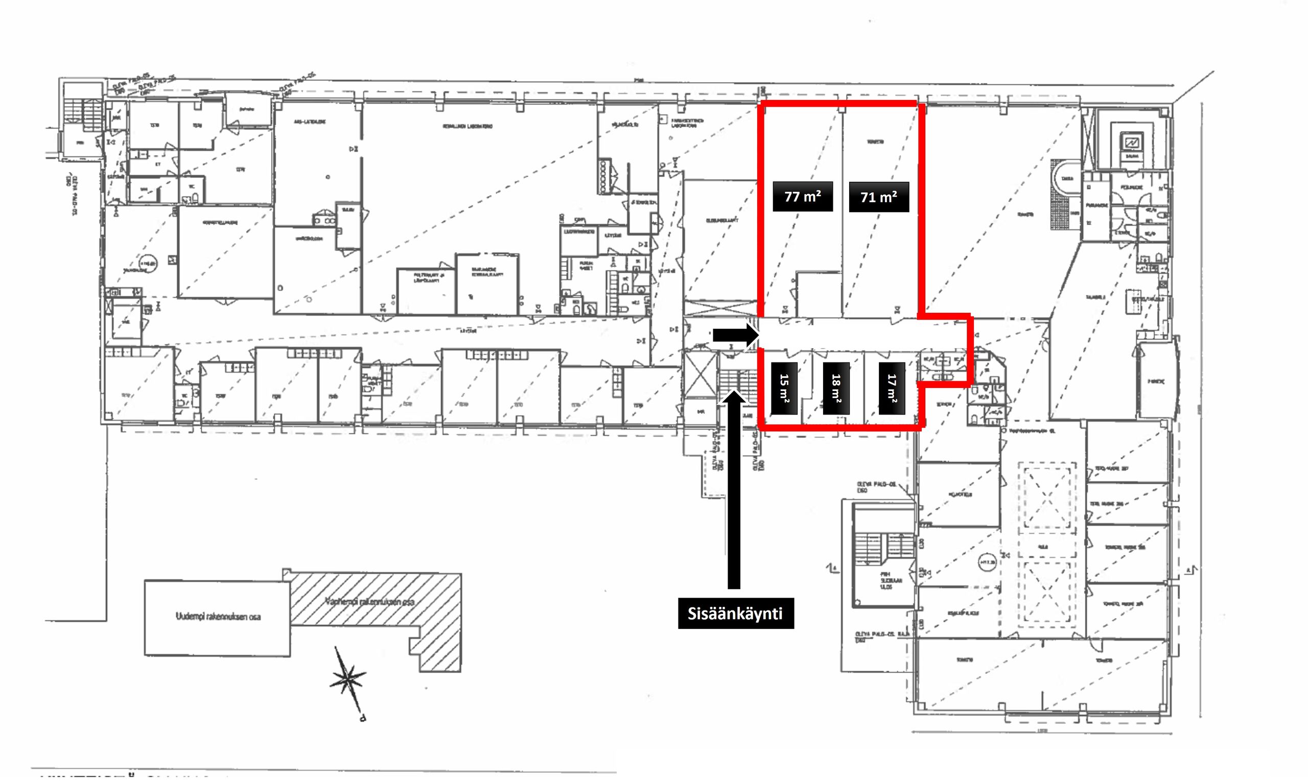
Kuva toimitilasta
  • Osoite: Volttikatu 5, 70150 Kuopio
  • Tyyppi: Toimistotila
  • Pinta-ala: 220,00m2
  • Kauppatapa: Vuokrattavana
  • Vuokrattavana
  • Hinnan lisätiedot: Ei sis. alv